Complesso di appartamenti in fase di costruzione composta da 2 pani fuori terra con ingresso indipendente, garage e scoperto di proprietà esclusiva.
Informazioni aggiuntive:
Gli appartamenti saranno dotati di impianto fotovoltaico opportunamente dimensionato ed eventualmente ampliabile in base alle esigenze del futuro acquirente, impianto di riscaldamento a pavimento, unità puntuali di ventilazione meccanica, finiture interne ed esterne di alta qualità.
Caratteristiche della zona:
Gli appartamenti si trovano in Comune di Ferrara, frazione Baura a circa 10 Km dal centro della città.
Si trova a circa 5 minuti di strada dall’ospedale di Cona.
Classe Energetica
Le nostre costruzioni possono vantare la classificazione in classe energetica “A3”
Composizione dell'immobile
Appartamenti indipendenti
Anno di costruzione
Inizio 2025
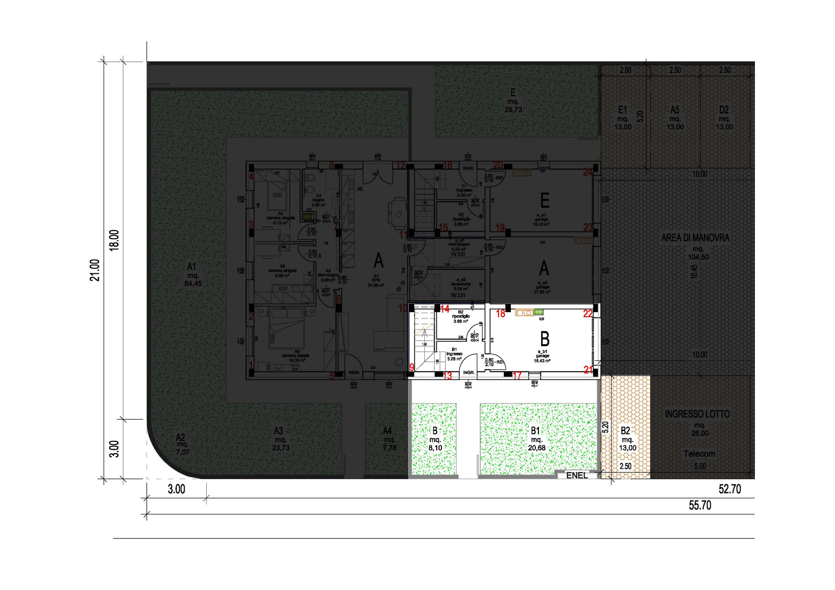
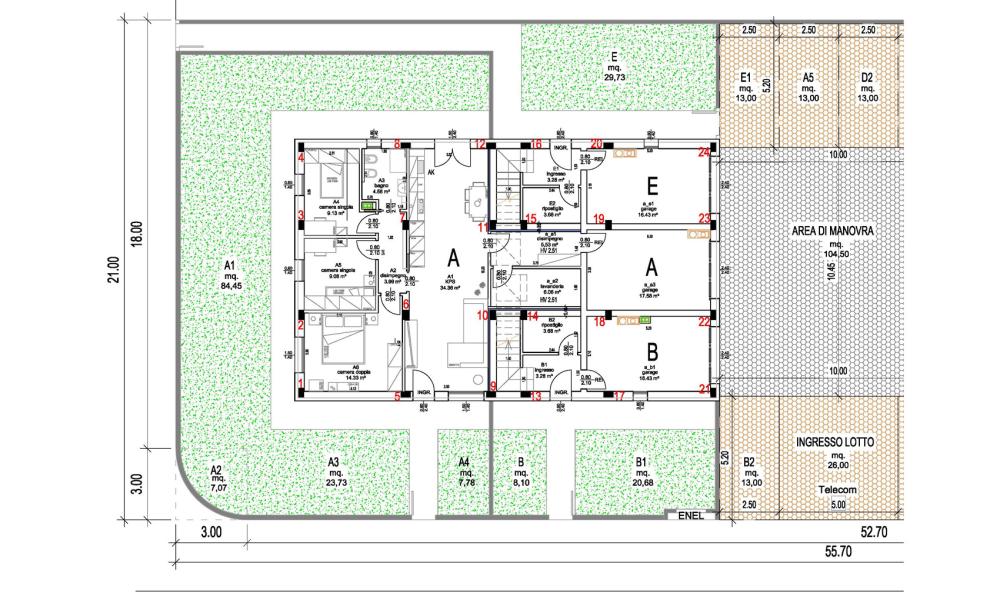
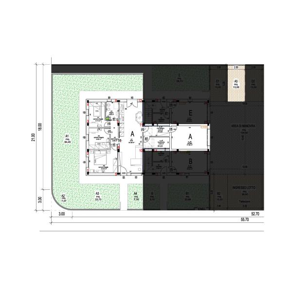
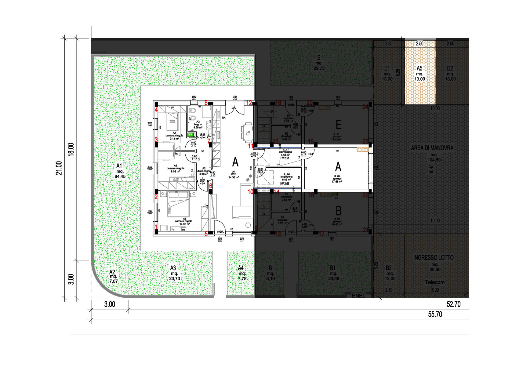
Appartamento A
1 piano
MQ
240
Camere
3
Bagni
1
Posto auto
1
Dettagli
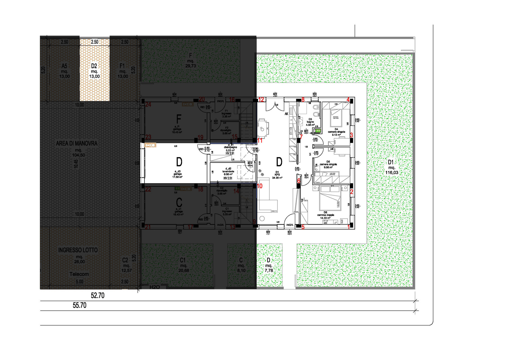
Piano terra
Ingresso, soggiorno con angolo cottura, disimpegno, camera doppia, camera singola, bagno, camera singola, lavanderia, disimpegno collegato a garage privato, cantina, ampio giardino
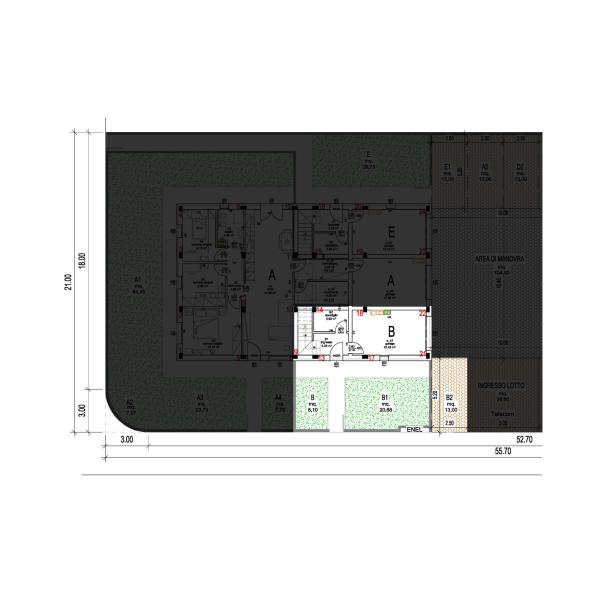
Appartamento B
2 piani
MQ
149
Camere
3
Bagni
1
Posto auto
1
Dettagli
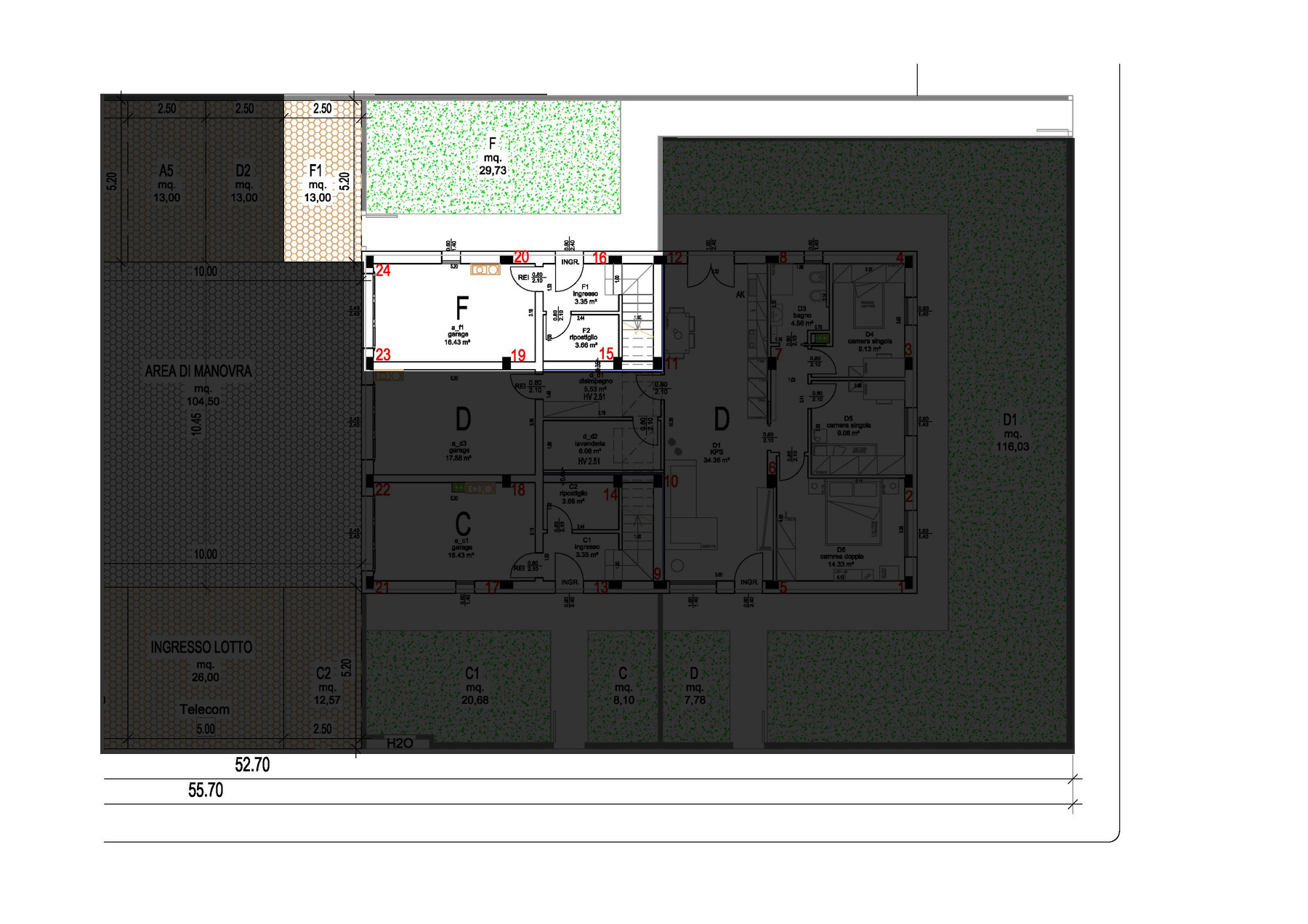
Piano terra
Giardino suddiviso in due aree, ingresso, garage, ripostiglio
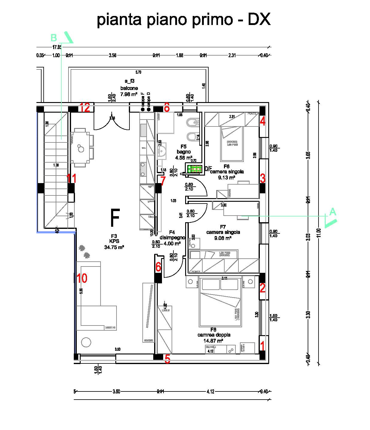
Piano primo
Ingresso, soggiorno con angolo cottura e balcone, disimpegno collegato a due camere singole e una camera doppia e un bagno.
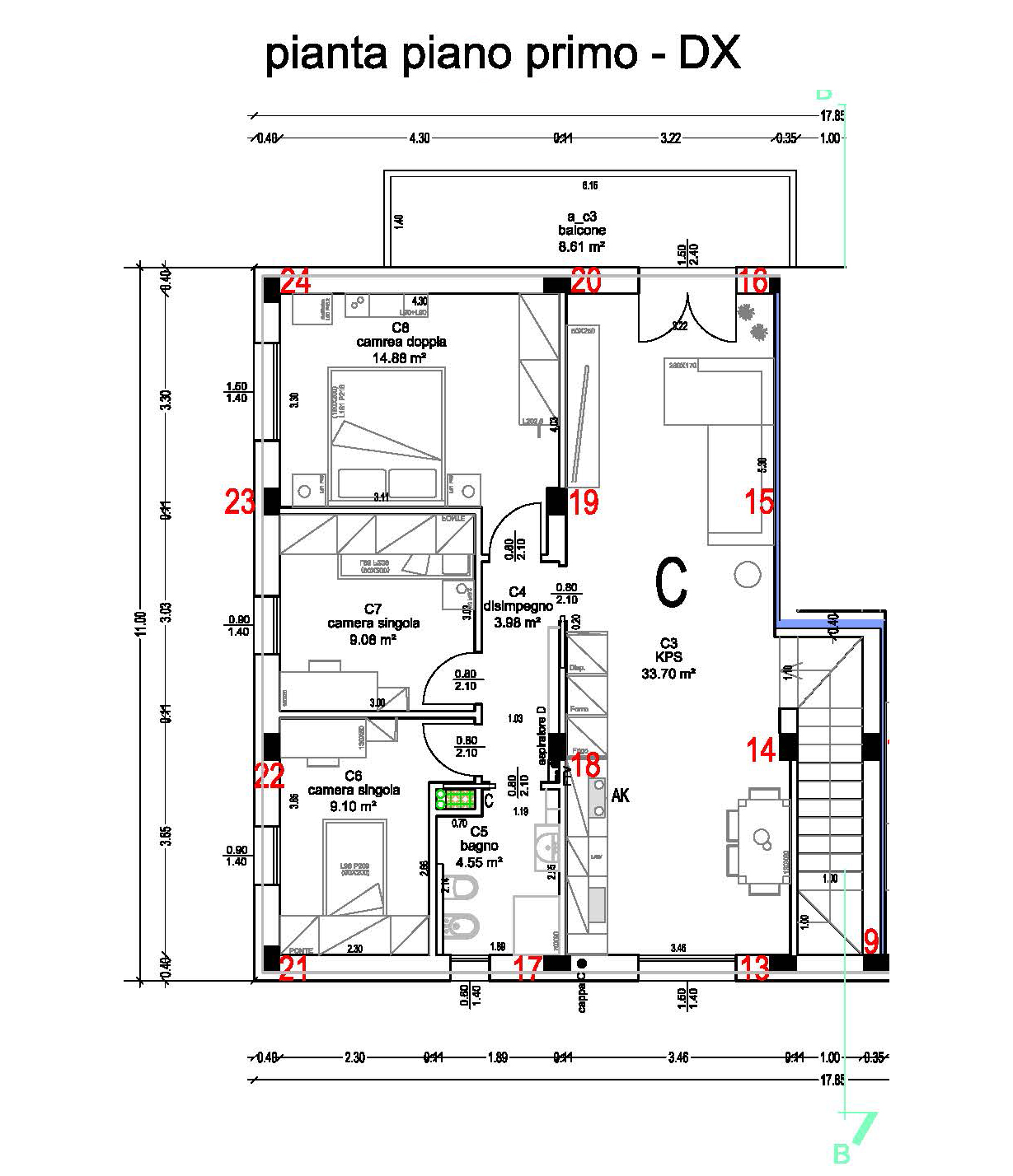
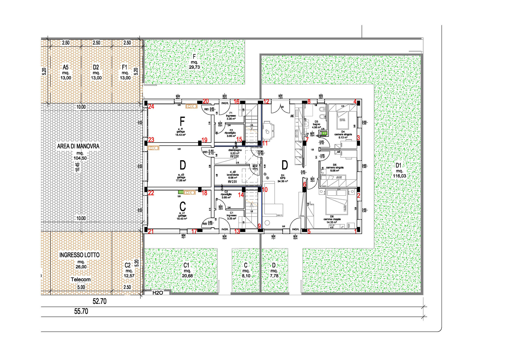
Appartamento C
2 piani
MQ
149
Camere
3
Bagni
1
Posto auto
1
Dettagli
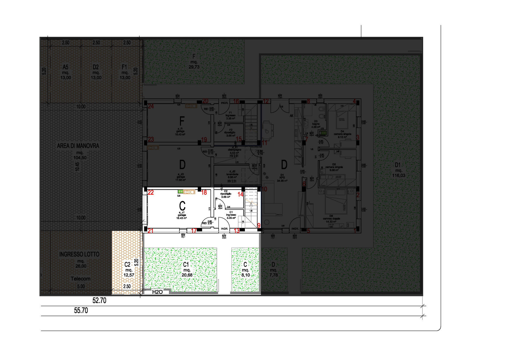
Piano terra
Cantina, giardino diviso in due aree, ingresso, garage, ripostiglio
Piano primo
Ingresso, soggiorno con angolo cottura e balcone, disimpegno collegato a due camere singole e una camera doppia e un bagno.
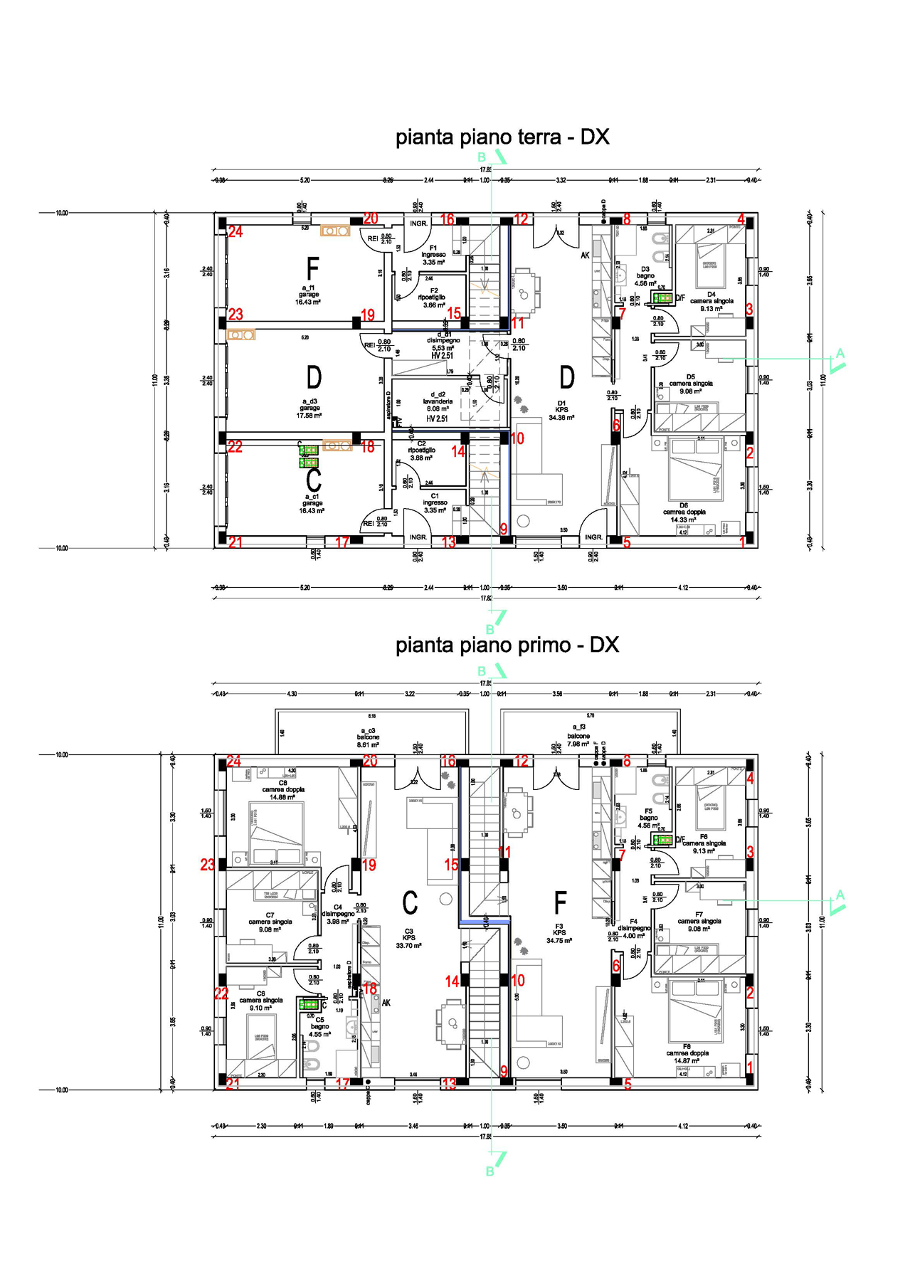
Appartamento D (VENDUTO)
1 piano
MQ
237
Camere
3
Bagni
1
Posto auto
1
Dettagli
Piano terra
Cantina, ampio giardino, ingresso , soggiorno con angolo cottura, disimpegno collegato a due camere singole, una camera doppia e un bagno. Disimpegno collegato a garage privato.
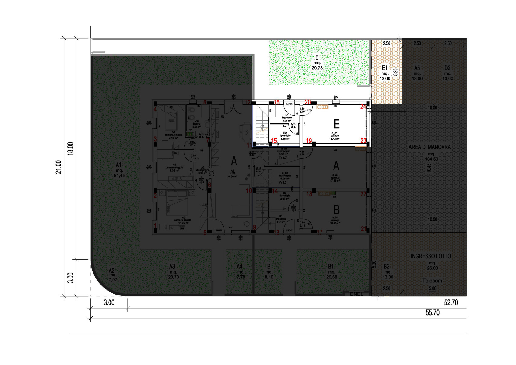
Appartamento E
2 piani
MQ
150
Camere
3
Bagni
1
Posto auto
1
Dettagli
Piano terra
Giardino, cantina, ingresso, garage, ripostiglio
Piano primo
Ingresso, soggiorno con angolo cottura e balcone, disimpegno collegato a due camere singole e una camera doppia e un bagno.
Appartamento F
2 piani
MQ
150
Camere
3
Bagni
1
Posto auto
1
Dettagli
Piano terra
Cantina, giardino, ingresso, garage, ripostiglio
Piano primo
Ingresso, soggiorno con angolo cottura e balcone, disimpegno collegato a due camere singole e una camera doppia e un bagno.
Non trovi la tua casa ideale?
Sottoscrivi la nostra newsletter e verrai informato su tutte le nuove vendite e proposte di Costruzioni Milan.