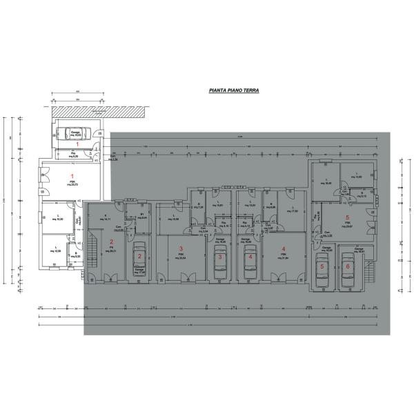
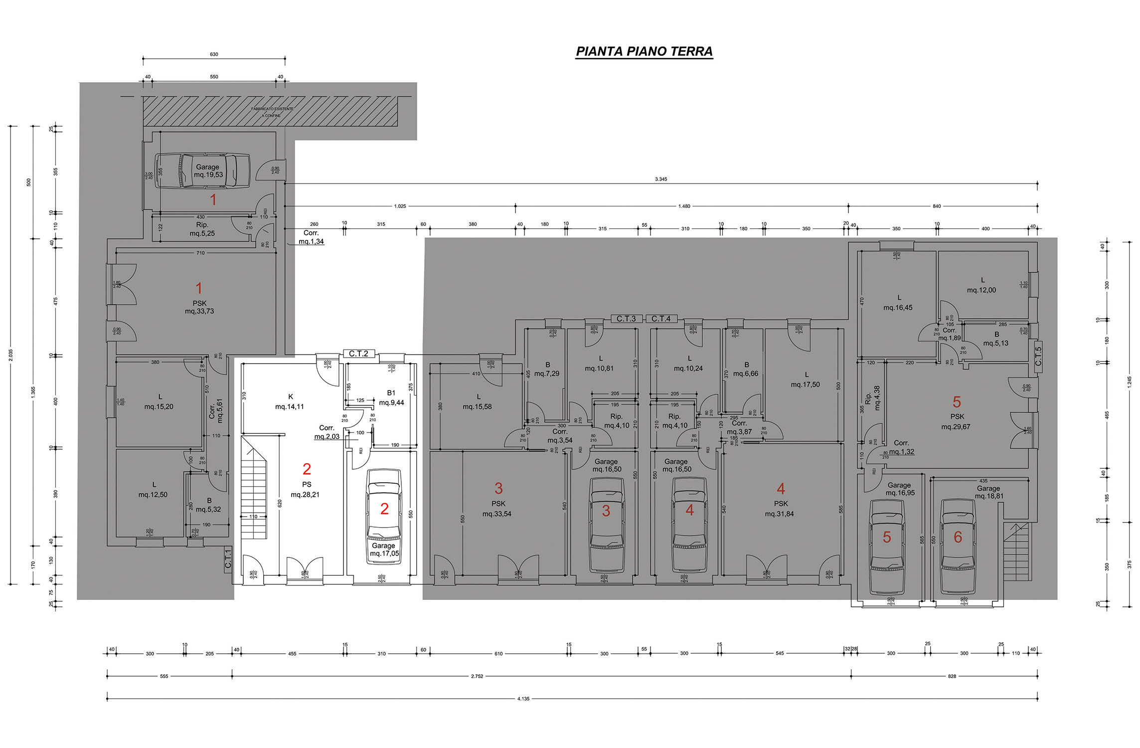
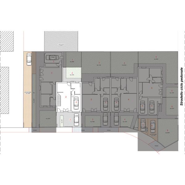
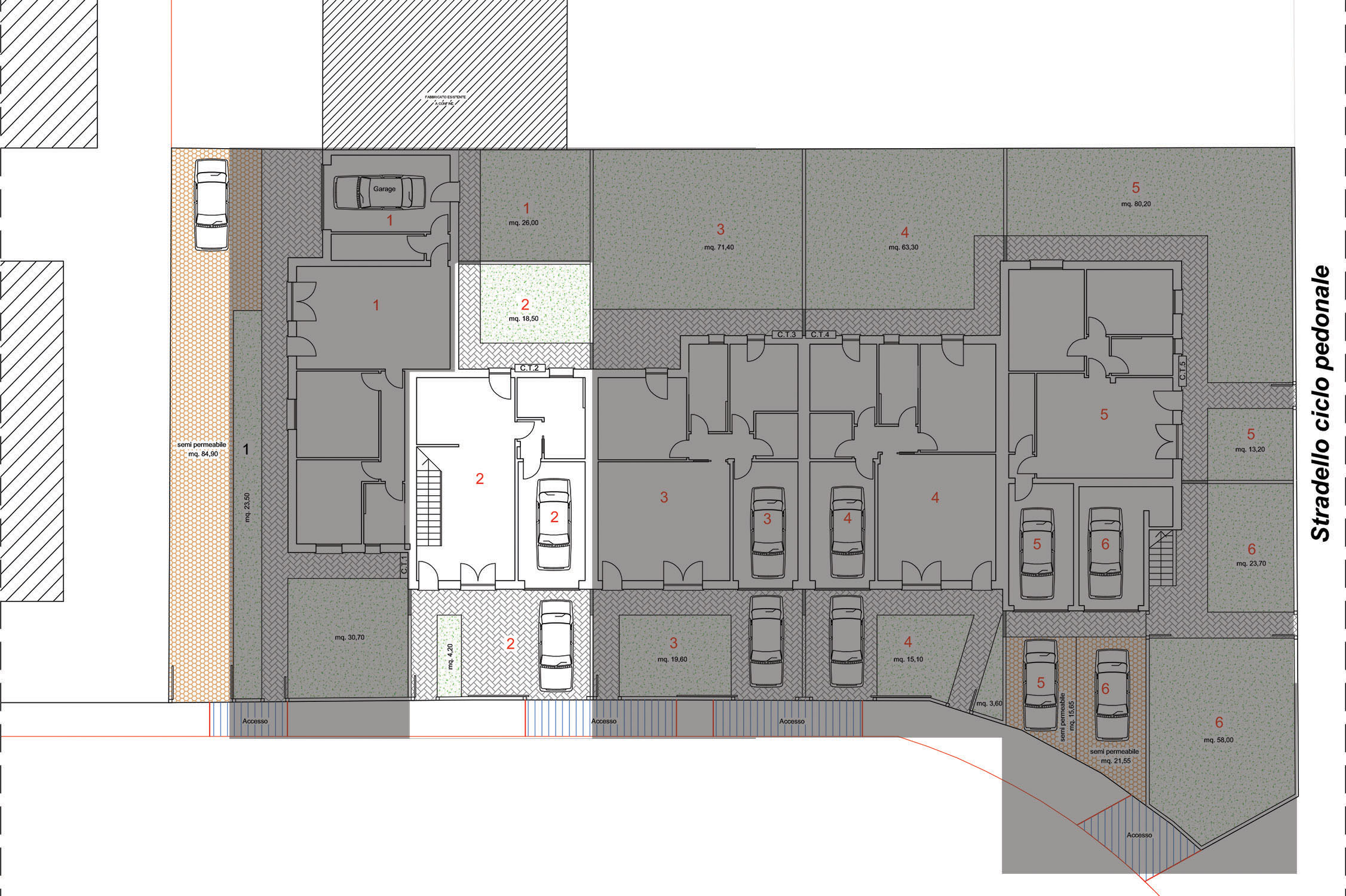
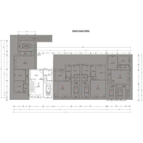
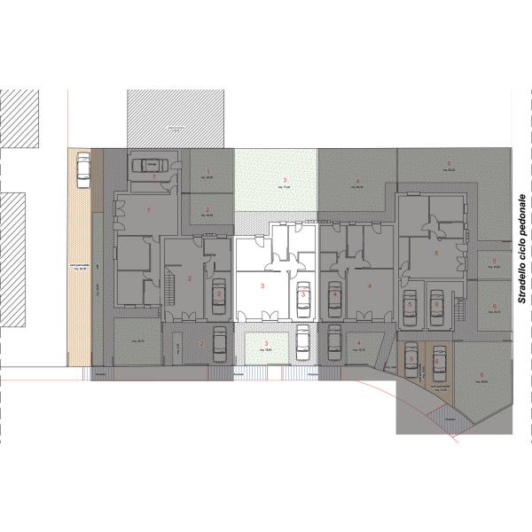
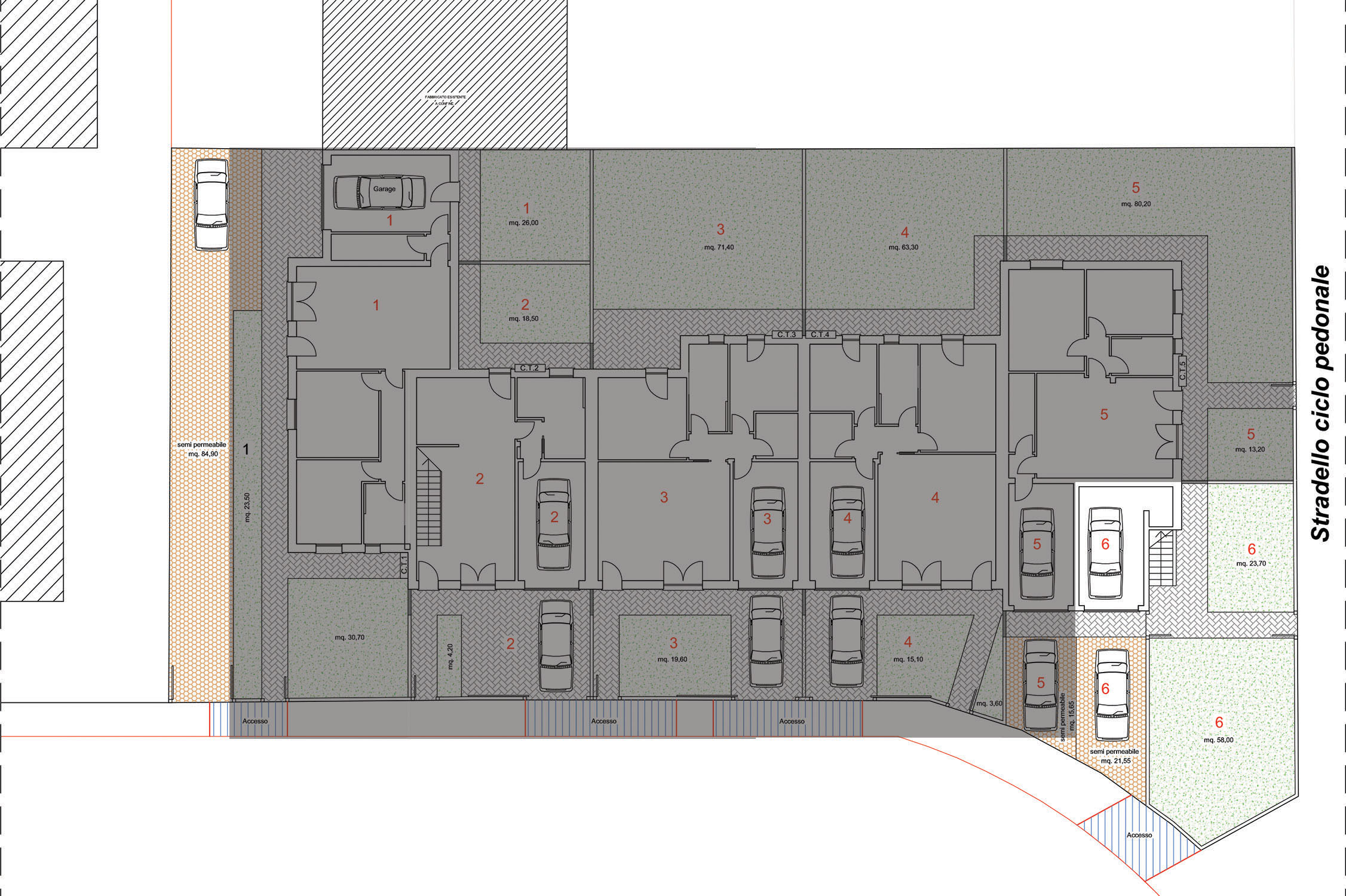
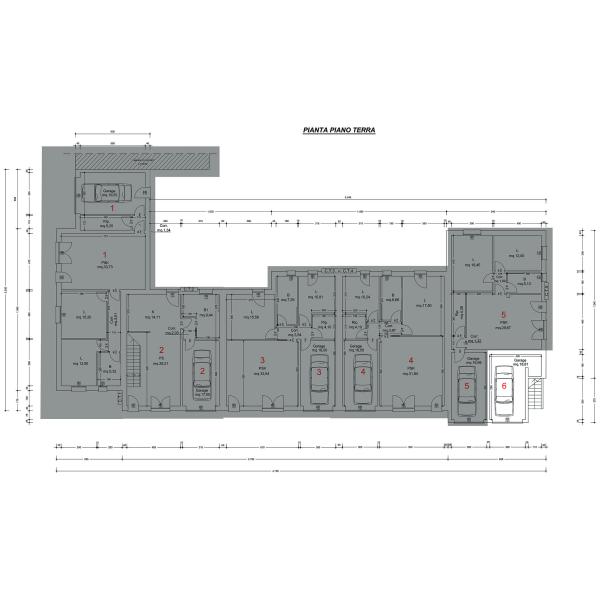
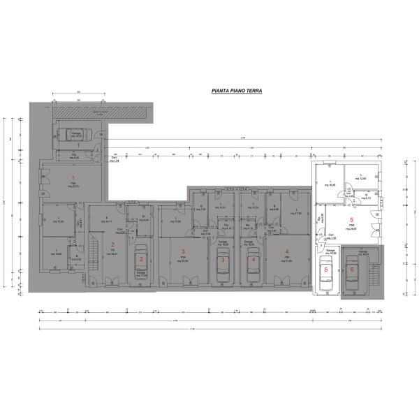
Complesso di 6 unità abitative in fase di costruzione disposte su 2 livelli, tutte con garage e posto auto totalmente indipendente.
Informazioni aggiuntive:
Gli alloggi saranno dotati di impianto fotovoltaico opportunamente dimensionato, con possibilità di ampliamento in base alle proprie esigenze. Impianto di riscaldamento a pavimento. Finiture interne ed esterne di alta qualità, impianto di ventilazione meccanica puntuale.
Caratteristiche della zona:
Gli alloggi si trovano nel comune di Occhiobello, frazione Santa Maria Maddalena in zona residenziale.
Classe Energetica
Le nostre costruzioni possono vantare la classificazione energetica "A3"
Composizione dell'immobile
1 Villetta + 5 Appartamenti
Anno di costruzione
Agosto 2025
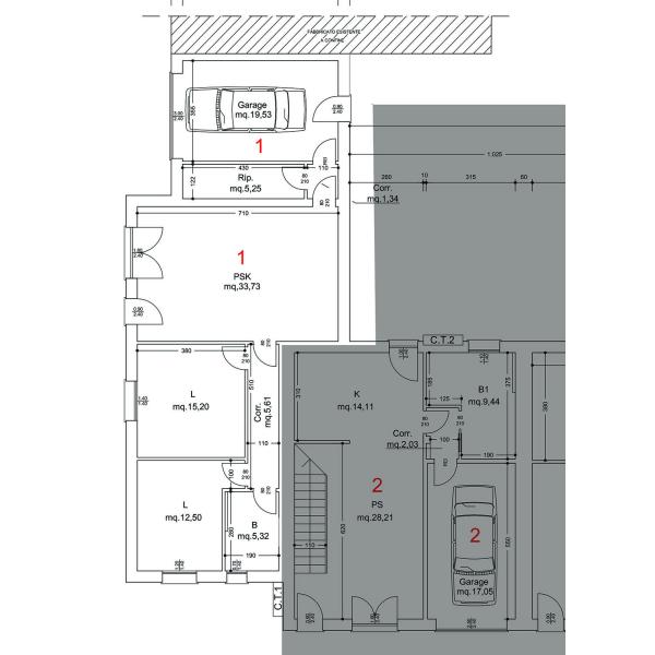
Appartamento n.1 (VENDUTO)
1 Piano
Camere
2
Bagni
1
Posto auto
1
Dettagli
Piano Terra
Soggiorno con angolo cottura, camera matrimoniale, camera singola, 1 bagno finestrato, ripostiglio, garage, scoperto esterno.
Villetta n.2
2 Piani
Camere
3
Bagni
2
Posto auto
1
Dettagli
Piano Terra
Soggiorno con angolo cottura, bagno finestrato, garage, scoperto esterno
Primo Piano
Camera matrimoniale, 2 camere singole, bagno finestrato, ripostiglio e terrazza
Appartamento n.3 (VENDUTO)
1 Piano
Camere
2
Bagni
1
Posto auto
1
Dettagli
Piano Terra
Soggiorno con angolo cottura, camera matrimoniale, camera singola, bagno finestrato, ripostiglio, garage e scoperto esterno
Appartamento n.4
1 Piano
Camere
2
Bagni
1
Posto auto
1
Dettagli
Piano Terra
Soggiorno con angolo cottura, camera matrimoniale, camera singola, bagno finestrato, ripostiglio, garage e scoperto esterno
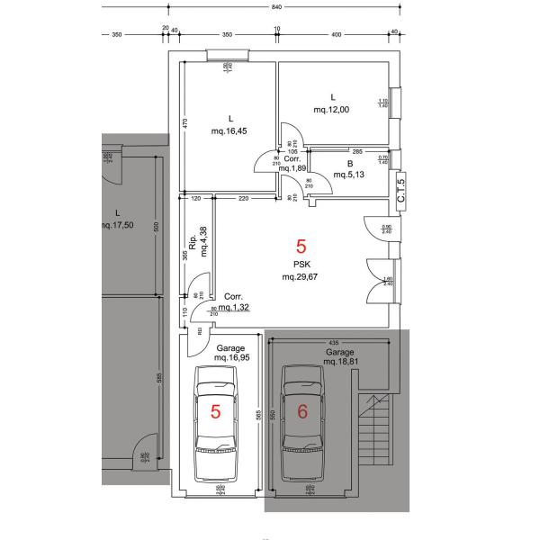
Appartamento n.5
1 Piano
Camere
2
Bagni
1
Posto auto
1
Dettagli
Piano Terra
Soggiorno con angolo cottura, camera matrimoniale, camera singola, bagno finestrato, ripostiglio, garage e scoperto esterno
Appartamento n.6
2 Piani
Camere
2
Bagni
1
Posto auto
1
Dettagli
Piano Terra
Garage e scoperto esterno
Primo Piano
Soggiorno con angolo cottura, camera matrimoniale, camera singola, bagno finestrato, ripostiglio e grande terrazza