Parco Laguna - Albarella

Parco Laguna - Albarella
2

Piani

A3

Classe

Descrizione dell'immobile:

Ville di lusso in vendita sull'Isola di Albarella - Italia, Laguna Esclusiva
Nel contesto incontaminato e riservato dell’Isola di Albarella, perla incastonata nella laguna veneta e accessibile solo ai residenti e ai loro ospiti, è in vendita un’esclusiva selezione di ville di lusso situate nella zona più prestigiosa dell’isola.
Circondate dalla natura, affacciate su scenari lagunari mozzafiato e progettate con materiali di pregio e massima attenzione al comfort, queste residenze offrono un perfetto equilibrio tra eleganza, privacy e relax.
Ogni villa dispone di ampi spazi interni e aree esterne curate, giardini privati, terrazze panoramiche e, in molte soluzioni, piscina privata. Gli ambienti sono luminosi, e dotati di ogni tecnologia per garantire un’esperienza abitativa di alto livello.

Caratteristiche della zona:

L’Isola di Albarella è un paradiso naturale, con servizi esclusivi, spiaggia privata, campi da golf, marina, campi da tennis, percorsi per equitazione, ristoranti gourmet, club privati e percorsi ciclabili immersi nel verde. Un luogo ideale per chi desidera vivere in armonia con la natura senza rinunciare al lusso e alla sicurezza.

A poche centinaia di metri dalle ville troviamo i principali club sportivi come Albarella Golf Links, Club di golf di alto livello con campo da golf a 18 buche affacciato sul mare, il Tennis Farm Albarella, con campi da tennis in terra rossa, e il Circolo Ippico di Albarella con campi di addestramento/salto, il Centro sportivo Beach con spiaggia attrezzata e la Scuola di Vela e Sport Acquatici.

Classe Energetica

A3

Composizione dell'immobile

Villa di lusso

Anno di costruzione

2025
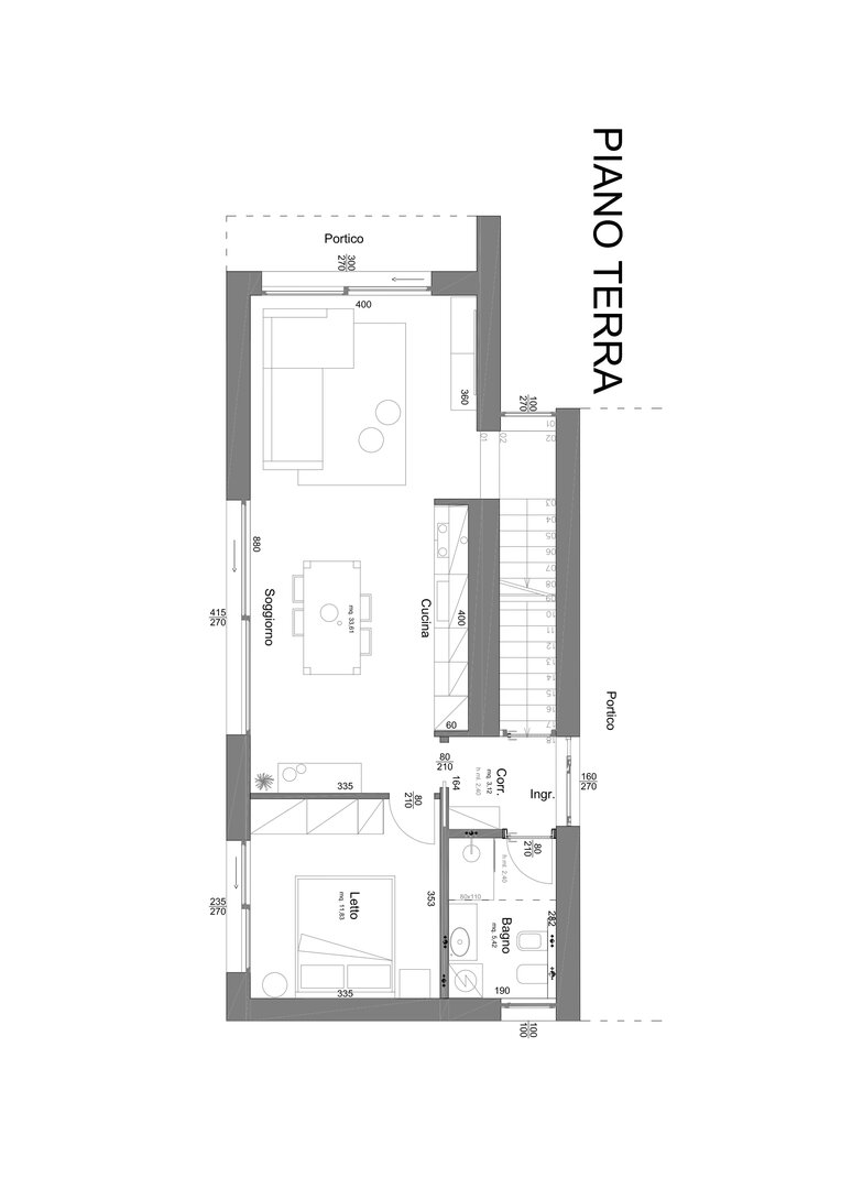
Villa tipologia 5
2 piani

Camere

2

Bagni

2
Villa tipologia 8
2 piani

Camere

4

Bagni

3